單人雙吹風淋設備
當前位置:首頁 >> 風淋設備系列 >> 正文單人雙吹風淋設備是無塵車間的一種凈化設備,是為工作人員進出潔凈區所設置的專用通道,可以有效清除人身和物體表面的塵埃,減少帶入潔凈室的灰塵量。風淋設備同時起到氣閘室功能,防止不清潔空氣侵入。風淋設備也是以配合潔凈空調系統的一種設備,確保潔凈室達到所需潔凈度。
單人雙吹風淋設備合適,就得看車間一般有多少人工作,算一下時間,一般的風淋設備吹淋時間為15秒鐘,這就不難算出要走完所有工作人員需要多少時間了,如果人多,那就多選擇幾個人的。
關系到單人雙吹風淋設備的穩定性,使用壽命,單人雙吹風淋設備的效果;我們經常說就是買一個鏍絲價格都會有差異,何況電器部件,廠家選用電器的好壞,風機的好壞就決定風淋效果;一般來講,我們選用風速大于二十五米以上的風淋就能起到除塵效果,低于此風速的,效果就大打折扣。
風淋設備根據箱體材質不同可分為:不銹鋼風淋設備,冷軋鋼板烤漆風淋設備,外鋼板內不銹鋼風淋設備。
風淋設備根據自動化程度不同可分為:智能語音風淋設備,自動門風淋設備,防爆風淋設備,快速卷簾門風淋設備。
單人雙吹風淋設備主要作用:
風淋設備是人員進入潔凈室無塵車間所必備的凈化設備,通用性強,可與所有的潔凈室和潔凈廠房配套使用,工作人員進入車間時,必須通過此設備,用強勁潔凈的空氣,由可旋轉噴嘴從各個方向噴射至人身上,有效而迅速清除去附著在衣服上的灰塵、頭發、發屑等雜物,風淋設備它可以減少人進出潔凈室所帶來的污染問題。風淋設備的兩道門電子互鎖,可以兼起氣閘室的作用,阻止外界污染和未被凈化的空氣進入潔凈區域。杜絕工作人員將頭發,灰塵、細菌帶入車間,達到工作場地嚴格的無塵凈化標準,生產出高質量的產品。
單人雙吹風淋設備工作原理:
經高效過濾器過濾后的潔凈氣流由可旋轉噴嘴從各個方向噴射至人身上,從而有效而迅速地清除塵埃粒子。清除后的塵埃粒子再經由初、高效過濾器過濾后重新循環到風淋區域內。為了達到吹淋的最好效果,風淋設備設計的噴嘴出風口風速能達到25m/s以上,吹到人身上的風速最低18m/s,出廠的初始風淋時間設置為15秒。
風淋室提供了模塊化的組裝方式,可以按實際需要拼裝成各種長度的風淋尺寸。
單人雙吹風淋設備結構說明:
1、風淋設備由箱體、門、高效過濾器、送風機、配電箱、噴嘴等幾大部件組成。
2、 風淋設備的底板通常由不銹鋼制成,箱體用不銹或鋼板折彎焊接表面為乳白色烤漆。
3、箱體采用優質的冷軋鋼板制造,表面靜電噴塑處理,美觀大方,內底板全不銹鋼板制做耐磨擦,易清潔。
4、箱體主材及外形尺寸可根據客戶要求定制。
單人雙吹風淋設備配置說明:
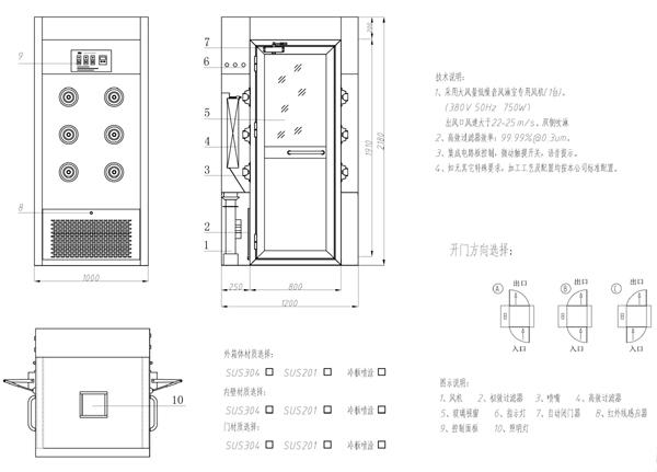
風淋設備產品規格(mm):寬*深*高 外形尺寸:1200*1000*2180 風淋區尺寸:800*860*1910
1、整體采用SUS304砂光不銹鋼制作(標準1.0mm),配不銹鋼通道地板,配SUS304砂光不銹鋼半玻璃視窗門;
2、電子互鎖、配優質閉門器;
3、配我司自產有隔板高效過濾器,過濾等級為:H13(MPPS),初效過濾器,過濾效率為:G4級(計重法),確保凈化級;
4、全自動紅外感應吹淋,“杭法”紅外感應器,正泰中間繼電器,單向通道風淋設備,從非潔凈區進入,關門后紅外線感應有人就吹淋,吹淋時雙門自動鎖閉,吹淋后入門鎖閉,由潔凈區出去時經過風淋室不吹淋以節省能源;
5、電源3N 、 380V 、 50HZ;
6、風淋設備用的電路板,LED顯示吹淋時間,時間繼電器0~99秒可調,紅外線自動感應器,感應自動吹淋,觸摸式微動開關,并安裝人性化智能語音提示系統;
7、配1臺大風量風淋室專用風機,功率:0.75KW/臺,確保吹淋效果,風速≥22-25m/s, 雙側吹淋,配12個不銹鋼噴嘴。
單人雙吹風淋設備規格尺寸參數:
?單人雙吹風淋設備常見故障:
一、 風淋設備電源開關,通常風淋設備有四個地方可以切斷電源:
1、風淋設備外箱體的電源開關;
2、風淋設備內箱體的控制面板;
4、風淋設備兩側外箱體上(此處電源開關可預防緊急情況下切斷電源,有效地提高我們的人身安全)。當電源指示燈不通時,不防重新檢查一下以上四個風淋設備電源處。
二、風淋設備風機不工作時,一時間去檢查一下風淋室外箱體的緊急開關是否切斷,如確定切斷了,用手輕輕一按,往右方旋轉一下松手即可。
三、 風淋設備風機倒轉或者風淋設備風速很小時,請務必檢查一下380V三相四線的線路是否反接,一般出廠安裝時會有專人的電工接好線;如反接了風淋室的線源,輕者會導致風淋設備風機不工作或反轉風淋設備風速減小,重者會燒掉整個風淋設備的線路板;我們不要輕意去更換接線。
四、風淋設備不吹淋,除了以上三點外,還需檢查風淋設備箱體內部的急停鍵是否按下,如急停鍵為經色時,風淋設備則不會吹淋;要重新按一下急停鍵則可正常工作。
五、風淋設備不能自動感應吹淋時,檢查風淋設備內箱體右下角的光感系統,看光感裝置是否安裝正確,如光感兩邊正相對且光感正常,則可自動感應吹淋。
六、風淋設備使用一段時間風速很低時,請檢查風淋室的初、高效過濾器是否積塵過多,如是請更換過濾器。(風淋設備初效過濾器一般1-6個月內更換一次,風淋設備高效過濾器一般6-12個月內更換一次)。
單人雙吹風淋設備維護:
1、定期使用儀器測定設備的各項技術指標,如不符合技術參數要求應及時予以處理。
2、根據實際使用情況,定期將初效空氣過濾器中的濾料取下清洗。
3、當發現風速變小時應首先檢查初效空氣過濾器表面是否發黑,若發黑則說明預過濾器容塵較多,阻力增大,即應拆下初效空氣過濾器內的無紡布進行清洗或予以調換。
4、當調換或清洗無紡布后,仍不能提高風速則說明高效空氣過濾器已經堵塞,造成阻力增大,則應更換高效空氣過濾器。
5、更換高效過濾器時,須拆下噴球板,取出高效過濾器,按照原有高效過濾器的規格型號更換新的高效空氣過濾器。安裝時應確認高效過濾器上的箭頭標記,箭頭應指向氣流的方向。并確保密封良好,防止滲漏。
6、高效過濾器更換完畢后需確認邊框無滲漏現象,并用塵埃粒子計數器進行檢測,達到技術指標后方可進行正常工作。
7、定期對電氣線路進行檢修,如有故障可參照電氣原理圖進行維修。
8、定期對門進行圍護,使電子鎖與其鎖孔對準,以免鎖銷卡死。
9、使用溫度不得超過50℃,且嚴禁使用明火。
單人雙吹風淋設備故障處置:
1、當風淋設備運用一段時間,如果出現風速很低時,應馬上檢查風淋設備的過濾器能否積塵過多,如是換新的換過濾器。通常1-6個月有必要交換一次,高效過濾器通常是6-12個月交換一次。
2、如果風淋設備出現不能自動感應吹淋時,檢查風淋設備內箱體右下角的光感系統,看光感設備能否設備正確。
如急停鍵為赤色時,說明風淋設備則不會吹淋,只需要從頭按下急停鍵則可正常作業。
3、當風淋設備不作業時,首要檢查一劣勢淋門外箱體的急迫開關能否堵截,如果堵截了,用手悄然一按,往右方旋轉一下松手即可。
4.、風淋設備風機倒轉或許風淋設備風速很小時,有必要檢查一下380V三相四線的線路能否接反。如反接了風淋設備的線源,輕者會致使風淋設備風機不作業或反轉風淋設備風速減小,重者會燒掉整個風淋設備的線路板。