風淋設備
當前位置:首頁 >> 風淋設備系列 >> 正文風淋設備(又名風淋室、風淋房、風淋門、空氣吹淋室、風淋機之類)是人員進出無塵室所必需的通道,并同時起到氣閘室密閉無塵室的緩沖作用,是進行人員除塵和防止室外空氣污染無塵室的有效設備,也是目前凈化車間人員通的必需設備。
風淋設備分類:
風淋設備根據吹淋方式可分為:單人單吹風淋設備、單人雙吹風淋設備、單人三吹風淋設備、雙人雙吹風淋設備、多人雙吹風淋設備、 智能語音風淋設備、全自動風淋設備、快速卷簾門風淋設備、不銹鋼風淋設備等;
風淋設備價格根據箱體材質不同可分為:
全不銹鋼風淋室設備,外冷板內不銹鋼風淋室設備,冷板烤漆風淋室設備,外冷板內不銹鋼風淋設備。
風淋設備應用領域:
風淋設備廣泛應用于電子、汽車制造、制藥化工、生物、食品、醫院等各種潔凈廠房和實驗室。
風淋設備工作原理:
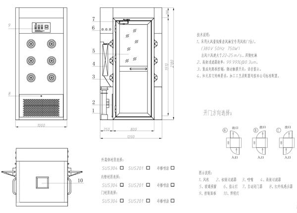
風淋設備經有隔板高效過濾器與無隔板高效過濾器過濾后的潔凈氣流由可旋轉噴嘴從各個方向噴射至人身上,從而有效而迅速地清除塵埃粒子。清除后的塵埃粒子再經由初、高效過濾器過濾后重新循環到風淋區域內。為了達到吹淋的最好效果,風淋設備設計的噴嘴出風口風速能達到25m/s以上,吹到人身上的風速最低18m/s,出廠的初始風淋時間設置為15秒風淋房提供了模塊化的組裝方式,可以按實際需要拼裝成各種長度的風淋尺寸。
風淋設備結構特點:
>>自動化控制:系統采用PLC智能化的控制手段,控制面板上LED顯示屏可正確顯示風淋的運行狀態、雙門的互鎖狀態、風淋周期進度和延時開門狀態。并設有光電感應器,單向通道風淋室,從非潔凈區進入,關門后紅外線感應有人就吹淋,吹淋后入門鎖閉,只能從出門走出風淋設備;
>>人性化操作:人性化的控制面板設計,清晰的指示燈指示,給予用戶清晰正確的風淋流程指示。軟鍵觸按式時間繼電器,LED顯示及設置吹淋時間,范圍在10-99s可調,用戶可根據風淋室外部環境的差異調節吹淋時間;
>>高潔凈度、高風速:采用初效過濾器、高效過濾器兩級過濾系統,無隔板高效過濾器低阻力高效過濾器,過濾效率為:99.99%,確保凈化級別。配全不銹鋼多角度可調噴嘴,雙渦殼外轉子大風量低噪風機,風嘴出風口風速高達25m/s以上,吹到人體上風速18m/s以上。
>>模塊式結構: 風淋設備箱體采用模塊化設計方案,可以按實際需要拼裝成各種長度的風淋尺寸。一臺風淋設備由一節或多節風淋單元組成,對于大體積的風淋設備,可分拆成多個模塊,使得生產、運輸、安裝特別方便、快捷;
>>高性能、高密封:采用進口電子元器件,運行性能穩定可靠 ,先進的減噪靜音裝置系統及采用EVA密封材料,密閉性能高。
風淋設備基本配置參數:影響風淋設備價格原因:
1、風淋噴嘴:360度可旋轉式嵌入安裝鏡面不銹鋼噴嘴,12只,左右兩側分布,吹風方向可旋轉;
2、凈化風機:專用凈化離心低噪音風機,2臺,風量:2000風量/小時;
3、吹淋風速:雙側吹風,25-30m/s,大風速保證吹淋效果;
4、吹淋時間:LED液晶藍屏顯示吹淋時間,(0-99s可調);
5、控制系統:PLC系統,程序可根據要求定制,帶OTS故障顯示功能(故障代碼直接在屏幕上顯示);
6、 控制面板:控制面盤軟觸點控制開關,帶鍵盤暗鎖保護,可有效防止員工隨意設置;
7、光電開關:歐姆龍(OMRON)光電開關,型號E3F3-R61,12-24VDC電源,自動感應吹淋,智能溫馨中文語音提示系統;
8、 過濾效率:三級過濾,初中效預過濾器45%(5um),數量2只,600*350*10mm,可清洗可更換,初效過濾器為風淋室主板;
9、 高效過濾器99.99%(0.3um)過濾效率,數量2只,規格600*600*120mm,過濾器安裝平整、牢固,過濾器與框架以及框架與壁板之間無漏縫,高效過濾器與框架之間采用EVA密封條密封;
10、箱體主材:內外1.2mm的冷軋鋼板烤漆,表面經過酸洗、磷化、去油去銹、高溫烘烤而成;(可選)
箱體主材:內外1.2mm的SUS304不銹鋼制作,表面經過拉絲或斷絲處理,食品級專用,304不銹鋼廣泛應用于電梯裝飾、廚房電器產品;(可選);
11、密封性能:制作精細,美觀大方。采用拼裝式結構,接縫處要求加墊密封條,整體設備安裝完畢后內部無漏光漏風現象。
12、 雙門:材質為全不銹鋼(SUS304),上部帶3C認證鋼化玻璃視窗,下部為不銹鋼平面處理,無凹凸棱角,減少死角;三道3MM厚度不銹鋼鉸鏈,保障門結實耐用,門與門框結合平整、牢固、美觀,密封性能良好,門開啟靈活。
13、閉門器:采用德國“多瑪Dorma”閉門器,型號:TS68,數量2只,手動開門,自動關門;(備注:多瑪閉門器是肯德基門店專用閉門器);
14、雙門電子聯鎖:風淋時兩扇門同時閉鎖,時間未到無法打開,保障強制員工吹淋;平時電子互鎖,只可打開其中的一扇門;雙門電鎖為電控鎖”力士堅LCJ“EC200型號陰級電插鎖,數量:2副;
15、 照明:嵌入式LED照明燈1只*2W ,節能環保;照明帶延時功能,即智能溫馨又節約能源;
16、電源:380V 50Hz(可為客戶非標私人定制110V,460V,60Hz等非標電壓頻率風淋設備);
17、 電器元件:空氣開關:施耐德空氣開關DN63;接觸器:施耐德接觸器5S-3510;熱繼電器:施耐德熱繼電器RS-25A;電器元件,風淋優秀品質保障;
18、不銹鋼拉手:采用對接式不銹鋼拉手,堅固耐用;采用美國”道康寧“密封膠密封,環保無異味;
19、安全措施:內部安裝有紅色”急停“按鈕,緊急情況下按下按鈕,系統斷電雙門可同時打開利于逃生;
20、功率:1.1Kw;重量:約350Kg
21、適用人數:1-2人(建議標準人數為1人)。
可按客戶要求定做非標準風淋設備。